Pacsirta utca 2/7.

Alapok

  • Hozzáadás dátuma: 1 hónap-vel ezelőtt hozzáadva
  • Projekt:
  • Típus:
  • Hálószobák: 2
  • Fürdőszobák: 1
  • Emelet szint: 2
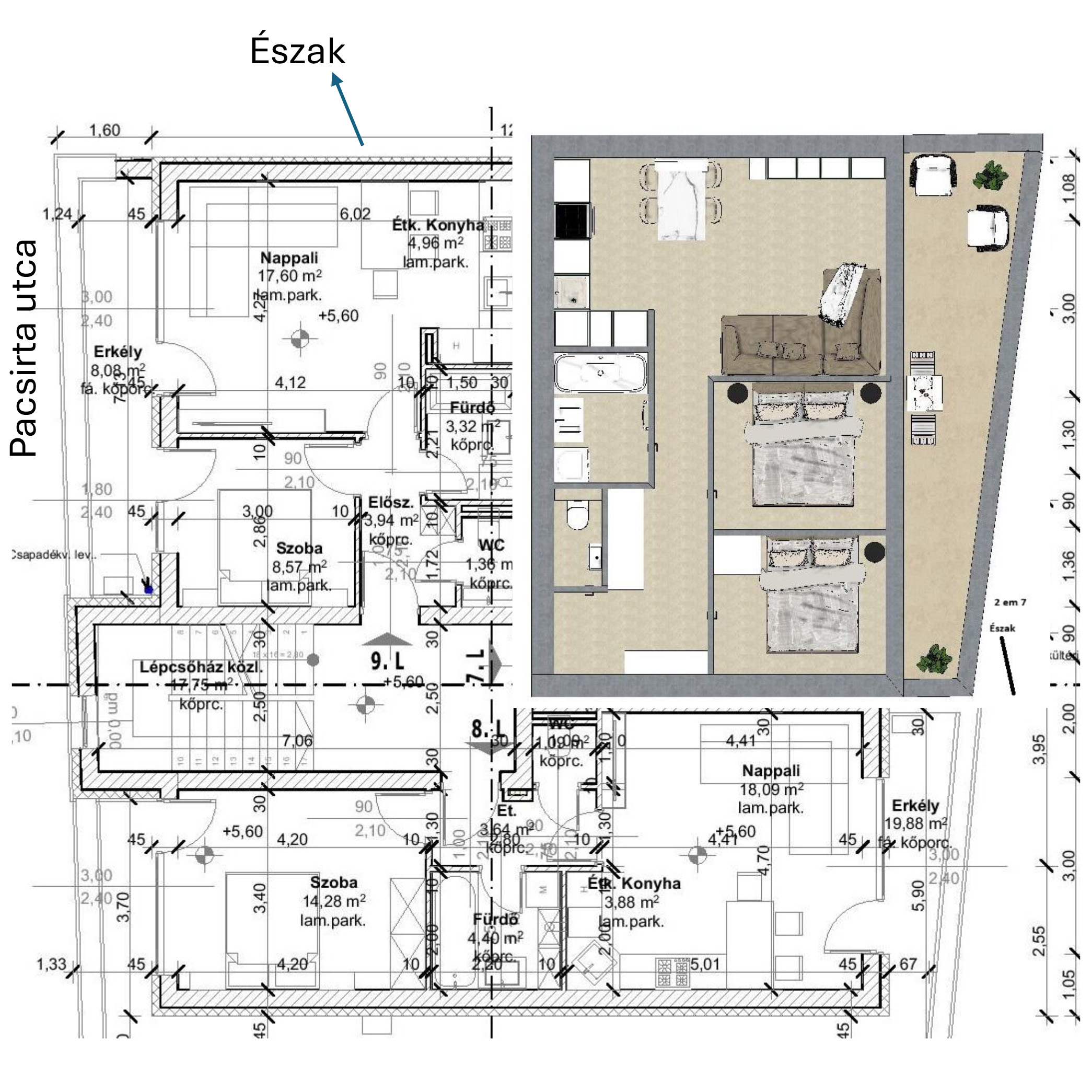
  • Terület, m²: 47.06
  • Terasz területe: 14.7
  • Építési év: 2026
  • Épület tipus: Társasház
  • Cím: Nyíregyháza Pacsirta utca

Leírás

  • Leírás:

    Eladó luxus társasház Nyíregyháza belvárosában a Pacsirta utcán – 9 exkluzív lakással, 7 garázzsal és 3 beállóval!
    Nyíregyháza szívében, mégis egy csendes utcában kínáljuk megvételre ezt a különleges, egyedi megvalósítású, luxus színvonalú 9 lakásos társasházat, GÉPESÍTETT, MAGAS MINŐSÉGŰ KONYHABÚTORRAL MINDEN LAKÁSBAN!
    Az ingatlan minden részletében a prémium minőséget képviseli, hiszen egy neves, profi Kivitelező által készült, a legmodernebb technológiákkal és kiemelkedő anyaghasználattal.
    A belső kialakítást lakberendező álmodta meg, így a lakások egyszerre stílusosak és praktikusak.
    A fotók illusztrációk, amelyek tökéletesen tükrözik a várható hangulatot és színvonalat.
    A nagyméretű erkéllyel rendelkező MÁSODIK EMELETI 7- es lakás irányára:
    71.500.000. Ft.
    Jellemzők:
    Gépesített, magas minőségű konyhabútor (Gorenje/Electrolux)
    Előszoba
    Konyha
    Nappali + étkező
    2 hálószoba
    Terasz
    47,06 m2 lakótér + 14,70 m2 terasz
    A társasház főbb jellemzői:
    • Kiváló kivitelezés, prémium anyaghasználat
    • Tágas, világos lakások nagyméretű erkélyekkel
    • Padlófűtés és klimatizálás a maximális kényelemért
    • Elektromos redőnyök a modern életérzéshez
    • Rengeteg extra felszereltség
    • Napfényes belső terek
    További exkluzív felszereltség:
    • Elektromos redőnyök minden lakásban
    • Riasztórendszer, még a garázsokban is
    • Modern LED világítás
    • Gázkazán a hatékony fűtésért
    • Padlófűtés a lakásokban a kellemes hőérzetért
    • Világos, napfényes fekvés
    • 3,5 kW-os huzatmentes inverteres Midea klíma
    A Kivitelező prémium burkolatainak, szaniterjeinek és bútorainak széles választéka biztosítja, hogy a leendő Tulajdonos egy valóban egyedi, a legmagasabb színvonalat képviselő otthont alakíthasson ki.
    Várható átadás: 2026. Év vége
    Az ingatlanhoz garázs és udvari beálló is vásárolható.
    Garázs vételára: 9.000.000. Ft + ÁFA
    Udvari beálló: 3.500.000. Ft. +ÁFA
    Ez nem csupán egy lakás, hanem otthon, ahol minden apró részlet Önért készült – hogy minden napját luxus környezetben élhesse meg.

Épület adatok

  • Fűtés: Padlófűtés
  • Parkolás: Udvari beálló, Terem, garázshely
  • Komfort: Luxus
  • Tetőtér: Legfelső emelet, nem tetőtéri
  • Fürdő + wc: Külön helyiségben
  • Belmagasság: 3 méternél alacsonyabb

Alaprajzok

  • Alaprajzok:

Felszereltség és jellemzők

Kérdezzen ügynöktől erről az ingatlanról

Telefon
By clicking the «INFORMÁCIÓKÉRÉS» button you agree to the Felhasználási feltételek and Adatvédelmi irányelvek

Ossza meg ezt: property

Másolás

Vagy ossza meg ezzel

Reset password

Inserisci il tuo indirizzo email e ti invieremo un link per cambiare la tua password.

Scroll to Top